
[·ÃÈæ¼÷¤ÎÄÂÂß¡§³ô¼°²ñ¼ÒApollon(¥¢¥Ý¥í¥ó)¤ÎÉÔÆ°»º¸¡º÷¥µ¥¤¥È] ·ÃÈæ¼÷¡¦¹Èø¡¦ÃæÌܹõ¡¦Âå´±»³¤ÇÄÂÂ߸¡º÷(ÄÂÂßõ¤·)
½Âë¶è¡¦¹Á¶è¡¦Ìܹõ¶è¡¦À¤ÅÄë¶è¡¦ÉÊÀî¶è¤Ê¤É¥¨¥ê¥¢¸¡º÷¤ÎÄÂÂß¾ðÊóËþºÜ¡ªºÇ¿·ÄÂÂßʪ·ï¾ðÊ󤬸«¤¿¤¤¡ª
ÄÂÂߤϽé¤á¤Æ¤À¤«¤éÁêÃ̤·¤¿¤¤¡ª¥¤¥ó¥¿¡¼¥Í¥Ã¥È¤Ë·ÇºÜ½ÐÍè¤Ê¤¤¤ªÆÀ¤ÊÄÂÂß¾ðÊó¤â¤´¾Ò²ð¤¤¤¿¤·¤Þ¤¹¡ª
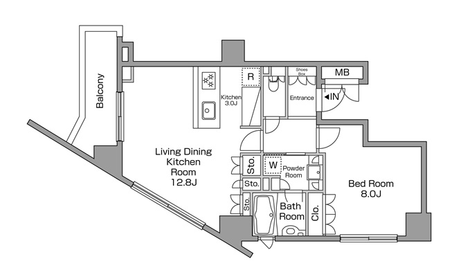
18³¬Ä¯Ë¾Îɹ¥¤Î1LDK¡ª¡ª ÃæÌܹõ±ØÅÌÊâ3ʬ¤È±Ø¶á¤Ç¤¢¤ê¤Ê¤¬¤é¡¢»³¼êÄ̤꤫¤é°ìËÜÆþ¤Ã¤¿¹¥Î©ÃϤ˷ú¤Ä¡¢¥Ú¥Ã¥È²ÄÄÂÂߥ¿¥ï¡¼¥ì¥¸¥Ç¥ó¥¹¡ª¡ª TV¥â¥Ë¥¿ÉÕ¥ª¡¼¥È¥í¥Ã¥¯¡¢¥«¥¦¥ó¥¿¡¼¥¬¥¹3¸ý¥·¥¹¥Æ¥à¥¥Ã¥Á¥ó¡¢¥Õ¥í¡¼¥ê¥ó¥°¡¢Íá¼¼´¥Á絡¡¢ÄÉʲ¤µ¡Ç½ÉÕ¤¥ª¡¼¥È¥Ð¥¹¡¢¥¦¥©¥·¥å¥ì¥Ã¥È¡¦¡¦¡¦etc
| ¹æ¼¼ | ´Ö¼è ÌÌÀÑ |
Éß¶â Îé¶â |
ÄÂÎÁ ´ÉÍýÈñ |
¾ÜºÙ |
|---|
¥ì¥¸¥Ç¥£¥¢¥¿¥ï¡¼ÃæÌܹõ¥Þ¥ó¥·¥ç¥ó½êͤΥª¡¼¥Ê¡¼ÍͤØ
¾åµÊª·ï¤ò¡ÖÂߤ·¤¿¤¤¡×¡ÖÇäµÑ¤·¤¿¤¤¡×¤È¤´¸¡Æ¤Ãæ¤Î¥ª¡¼¥Ê¡¼ÍͤϤªµ¤·Ú¤Ë¤ªÌ䤤¹ç¤ï¤»¤¯¤À¤µ¤¤¡£
̵ÎÁººÄꡦÅö¥µ¥¤¥È¤Ø¤Î·ÇºÜ¤Î¤ß¤â̵ÎÁ¤ÇÂбþ¤¤¤¿¤·¤Þ¤¹¡£
© 2019 Apollon Co Ltd.