
[·ÃÈæ¼÷¤ÎÄÂÂß¡§³ô¼°²ñ¼ÒApollon(¥¢¥Ý¥í¥ó)¤ÎÉÔÆ°»º¸¡º÷¥µ¥¤¥È] ·ÃÈæ¼÷¡¦¹Èø¡¦ÃæÌܹõ¡¦Âå´±»³¤ÇÄÂÂ߸¡º÷(ÄÂÂßõ¤·)
½Âë¶è¡¦¹Á¶è¡¦Ìܹõ¶è¡¦À¤ÅÄë¶è¡¦ÉÊÀî¶è¤Ê¤É¥¨¥ê¥¢¸¡º÷¤ÎÄÂÂß¾ðÊóËþºÜ¡ªºÇ¿·ÄÂÂßʪ·ï¾ðÊ󤬸«¤¿¤¤¡ª
ÄÂÂߤϽé¤á¤Æ¤À¤«¤éÁêÃ̤·¤¿¤¤¡ª¥¤¥ó¥¿¡¼¥Í¥Ã¥È¤Ë·ÇºÜ½ÐÍè¤Ê¤¤¤ªÆÀ¤ÊÄÂÂß¾ðÊó¤â¤´¾Ò²ð¤¤¤¿¤·¤Þ¤¹¡ª
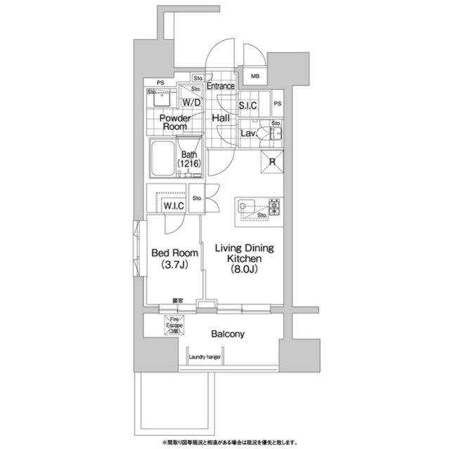
·ÃÈæ¼÷±Ø¶á¤ÎÃÛÀõÄÂÂߥޥ󥷥ç¥ó¡ª ÆüÅö¤ê¡¢Ä¯Ë¾Îɹ¥¤Î³ÑÉô²°2Ì̺θ÷¤Î1£Ì£Ä£Ë¤Ç¡¢¥Ù¥Ã¥É¥ë¡¼¥à¤Ë¤Ï¥¦¥©¡¼¥¯¥¤¥ó¥¯¥í¡¼¥¼¥Ã¥È¤¬¡¢¥ê¥Ó¥ó¥°¤Ï¥«¥¦¥ó¥¿¡¼¥¥Ã¥Á¥ó¡¢¸¼´Ø¤Ë¤Ï¥·¥å¡¼¥º¥¤¥ó¥¯¥í¡¼¥¼¥Ã¥È¤Î¤¢¤ë²÷ŬÀ¤ò¹Íθ¤·¤¿Ì¥ÎÏŪ¤Ê´Ö¼è¤ê¡ª ¾¤Ë¤â¡¢¥¬¥¹2¸ý¥¥Ã¥Á¥ó¡¢Íá¼¼´¥Á絡¡¢ÄÉʲ¤µ¡Ç½ÉեХ¹¡¢²¹¿åÀö¾ôµ¡Ç½ÉÕÊØºÂ¤È¤¤¤Ã¤¿½¼¼Â¤Î¥¢¥¤¥Æ¥à¤ò´°È÷¤·¤Æ¤ª¤ê¤Þ¤¹¡ª·ÃÈæ¼÷±Ø¤«¤é2¡¦3ʬ¡¢¥³¥ó¥Ó¥Ë¤ä¥¹¡¼¥Ñ¡¼¤â¤¹¤°¶á¤¯¤Ë¤¢¤êÀ¸³è¤·°×¤¤¤ª´«¤á¤Î¥Þ¥ó¥·¥ç¥ó¤Ç¤¹¡ª¡ª
| ¹æ¼¼ | ´Ö¼è ÌÌÀÑ |
Éß¶â Îé¶â |
ÄÂÎÁ ´ÉÍýÈñ |
¾ÜºÙ |
|---|
¥¨¥ë¥¹¥¿¥ó¥¶·ÃÈæ¼÷¥Þ¥ó¥·¥ç¥ó½êͤΥª¡¼¥Ê¡¼ÍͤØ
¾åµÊª·ï¤ò¡ÖÂߤ·¤¿¤¤¡×¡ÖÇäµÑ¤·¤¿¤¤¡×¤È¤´¸¡Æ¤Ãæ¤Î¥ª¡¼¥Ê¡¼ÍͤϤªµ¤·Ú¤Ë¤ªÌ䤤¹ç¤ï¤»¤¯¤À¤µ¤¤¡£
̵ÎÁººÄꡦÅö¥µ¥¤¥È¤Ø¤Î·ÇºÜ¤Î¤ß¤â̵ÎÁ¤ÇÂбþ¤¤¤¿¤·¤Þ¤¹¡£
© 2019 Apollon Co Ltd.