
[·ÃÈæ¼÷¤ÎÄÂÂß¡§³ô¼°²ñ¼ÒApollon(¥¢¥Ý¥í¥ó)¤ÎÉÔÆ°»º¸¡º÷¥µ¥¤¥È] ·ÃÈæ¼÷¡¦¹Èø¡¦ÃæÌܹõ¡¦Âå´±»³¤ÇÄÂÂ߸¡º÷(ÄÂÂßõ¤·)
½Âë¶è¡¦¹Á¶è¡¦Ìܹõ¶è¡¦À¤ÅÄë¶è¡¦ÉÊÀî¶è¤Ê¤É¥¨¥ê¥¢¸¡º÷¤ÎÄÂÂß¾ðÊóËþºÜ¡ªºÇ¿·ÄÂÂßʪ·ï¾ðÊ󤬸«¤¿¤¤¡ª
ÄÂÂߤϽé¤á¤Æ¤À¤«¤éÁêÃ̤·¤¿¤¤¡ª¥¤¥ó¥¿¡¼¥Í¥Ã¥È¤Ë·ÇºÜ½ÐÍè¤Ê¤¤¤ªÆÀ¤ÊÄÂÂß¾ðÊó¤â¤´¾Ò²ð¤¤¤¿¤·¤Þ¤¹¡ª
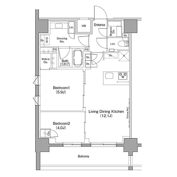
¡Ú¥Õ¥ê¡¼¥ì¥ó¥ÈÉÕ¤¡Û·ÃÈæ¼÷Ä̤ê±è¤¤¡¢·ÃÈæ¼÷¤È¹Èø¤¬ÍøÍѲÄǽ¤ÊΩÃϤ˴°À®¤·¤¿»°É©ÃϽê¥Ö¥é¥ó¥É¡Ö¥¶¡¦¥Ñ¡¼¥¯¥Ï¥Ó¥ª·ÃÈæ¼÷¥×¥ì¥¤¥¹¡×Ʋ¡¹¤ÈÊ罸³«»Ï¤Ç¤¹¡ª³ÑÉô²°2LDK¥¿¥¤¥×¤Ç¡¢¥Ù¥Ã¥É¥ë¡¼¥à¤È¥ê¥Ó¥ó¥°¤Ï¥¹¥é¥¤¥É¼°¤Î¥É¥¢¤Ç»ÅÀÚ¤é¤ì¤¿ÌµÂ̤Τʤ¤À߷פǤ¹¡ª¥¦¥©¡¼¥¯¥¤¥ó¥¯¥í¡¼¥¼¥Ã¥È¤È±ü¹Ô¤¤Î¤¢¤ë¥·¥å¡¼¥º¥¯¥í¡¼¥¼¥Ã¥È¤òÈ÷¤¨¤¿¼ýǼËÉ٤ʽ»¸Í¡ª²÷Ŭ¤Ê¿å²ó¤êÀßÈ÷¤ËÎɹ¥¤Ê´ÉÍýÂÎÀ©¡¢¥»¥¥å¥ê¥Æ¥£¤òÈ÷¤¨¤¿¹â¿å½à¤ÎÄÂÂߥޥ󥷥ç¥ó¤Ç¤¹¡ª
¢¨¼Ì¿¿¤ÏÊÌ¥¿¥¤¥×¤Î¤ªÉô²°¤Ç¤¹
| ¹æ¼¼ | ´Ö¼è ÌÌÀÑ |
Éß¶â Îé¶â |
ÄÂÎÁ ´ÉÍýÈñ |
¾ÜºÙ |
|---|
¥¶¡¦¥Ñ¡¼¥¯¥Ï¥Ó¥ª·ÃÈæ¼÷¥×¥ì¥¤¥¹¥Þ¥ó¥·¥ç¥ó½êͤΥª¡¼¥Ê¡¼ÍͤØ
¾åµÊª·ï¤ò¡ÖÂߤ·¤¿¤¤¡×¡ÖÇäµÑ¤·¤¿¤¤¡×¤È¤´¸¡Æ¤Ãæ¤Î¥ª¡¼¥Ê¡¼ÍͤϤªµ¤·Ú¤Ë¤ªÌ䤤¹ç¤ï¤»¤¯¤À¤µ¤¤¡£
̵ÎÁººÄꡦÅö¥µ¥¤¥È¤Ø¤Î·ÇºÜ¤Î¤ß¤â̵ÎÁ¤ÇÂбþ¤¤¤¿¤·¤Þ¤¹¡£
© 2019 Apollon Co Ltd.