
[·ÃÈæ¼÷¤ÎÄÂÂß¡§³ô¼°²ñ¼ÒApollon(¥¢¥Ý¥í¥ó)¤ÎÉÔÆ°»º¸¡º÷¥µ¥¤¥È] ·ÃÈæ¼÷¡¦¹Èø¡¦ÃæÌܹõ¡¦Âå´±»³¤ÇÄÂÂ߸¡º÷(ÄÂÂßõ¤·)
½Âë¶è¡¦¹Á¶è¡¦Ìܹõ¶è¡¦À¤ÅÄë¶è¡¦ÉÊÀî¶è¤Ê¤É¥¨¥ê¥¢¸¡º÷¤ÎÄÂÂß¾ðÊóËþºÜ¡ªºÇ¿·ÄÂÂßʪ·ï¾ðÊ󤬸«¤¿¤¤¡ª
ÄÂÂߤϽé¤á¤Æ¤À¤«¤éÁêÃ̤·¤¿¤¤¡ª¥¤¥ó¥¿¡¼¥Í¥Ã¥È¤Ë·ÇºÜ½ÐÍè¤Ê¤¤¤ªÆÀ¤ÊÄÂÂß¾ðÊó¤â¤´¾Ò²ð¤¤¤¿¤·¤Þ¤¹¡ª
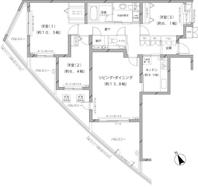
100Ê¿ÊÆÄ¶¤Î¥Õ¥¡¥ß¥ê¡¼¥¿¥¤¥×3LDK¡ª¡ª¥ê¥Ó¥ó¥°¤Ï15Ä¡°Ê¾å³ÎÊݤ·¡¢¥Ç¥Ã¥É¥¹¥Ú¡¼¥¹¤Î̵¤¤¥ì¥¤¥¢¥¦¥È¤·°×¤¤´Ö¼è¡ª¡ªÁ´µï¼¼£¶Ä¡°Ê¾å³ÎÊݤ·¡¢¥Þ¥¹¥¿¡¼¥Ù¥Ã¥É¥ë¡¼¥à¤Ë¤Ï¥¦¥©¡¼¥¯¥¤¥ó¥¯¥í¡¼¥¼¥Ã¥È¤òÇÛÈ÷¡ª¡ª¥ª¡¼¥È¥í¥Ã¥¯¡¢ÂðÇۥܥ寥¹¡¢¥¨¥ì¥Ù¡¼¥¿¡¢¥¨¥¢¥³¥ó¡¢¾²ÃÈ˼¡¢¥Õ¥í¡¼¥ê¥ó¥°¡¢CATV¡¢BS¡¢CS¡¢¥¦¥©¡¼¥¯¥¤¥ó¥¯¥í¡¼¥¼¥Ã¥È¡¢¥·¥å¡¼¥º¥¯¥í¡¼¥¼¥Ã¥È¡¢Íá¼¼´¥Áç¡¢¥¦¥©¥·¥å¥ì¥Ã¥È¡¢¥·¥¹¥Æ¥à¥¥Ã¥Á¥ó¡¢¥¬¥¹¥ì¥ó¥¸¡¢¥°¥ê¥ë¡¢¿©´ïÀö¾ô´¥Á絡¡¢¾ô¿å´ï¡Äetc
¢¨¼Ì¿¿¤ÏÊÌ¥¿¥¤¥×¤Î¤ªÉô²°¤Ç¤¹
| ¹æ¼¼ | ´Ö¼è ÌÌÀÑ |
Éß¶â Îé¶â |
ÄÂÎÁ ´ÉÍýÈñ |
¾ÜºÙ |
|---|
MFPR¥³¡¼¥ÈÂå´±»³¥Þ¥ó¥·¥ç¥ó½êͤΥª¡¼¥Ê¡¼ÍͤØ
¾åµÊª·ï¤ò¡ÖÂߤ·¤¿¤¤¡×¡ÖÇäµÑ¤·¤¿¤¤¡×¤È¤´¸¡Æ¤Ãæ¤Î¥ª¡¼¥Ê¡¼ÍͤϤªµ¤·Ú¤Ë¤ªÌ䤤¹ç¤ï¤»¤¯¤À¤µ¤¤¡£
̵ÎÁººÄꡦÅö¥µ¥¤¥È¤Ø¤Î·ÇºÜ¤Î¤ß¤â̵ÎÁ¤ÇÂбþ¤¤¤¿¤·¤Þ¤¹¡£
© 2019 Apollon Co Ltd.