
[·ÃÈæ¼÷¤ÎÄÂÂß¡§³ô¼°²ñ¼ÒApollon(¥¢¥Ý¥í¥ó)¤ÎÉÔÆ°»º¸¡º÷¥µ¥¤¥È] ·ÃÈæ¼÷¡¦¹Èø¡¦ÃæÌܹõ¡¦Âå´±»³¤ÇÄÂÂ߸¡º÷(ÄÂÂßõ¤·)
½Âë¶è¡¦¹Á¶è¡¦Ìܹõ¶è¡¦À¤ÅÄë¶è¡¦ÉÊÀî¶è¤Ê¤É¥¨¥ê¥¢¸¡º÷¤ÎÄÂÂß¾ðÊóËþºÜ¡ªºÇ¿·ÄÂÂßʪ·ï¾ðÊ󤬸«¤¿¤¤¡ª
ÄÂÂߤϽé¤á¤Æ¤À¤«¤éÁêÃ̤·¤¿¤¤¡ª¥¤¥ó¥¿¡¼¥Í¥Ã¥È¤Ë·ÇºÜ½ÐÍè¤Ê¤¤¤ªÆÀ¤ÊÄÂÂß¾ðÊó¤â¤´¾Ò²ð¤¤¤¿¤·¤Þ¤¹¡ª
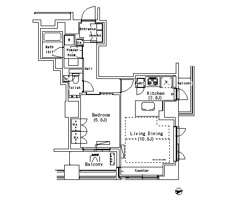
³ÑÉô²°1LDK¡ª¡ª2Ì̺θ÷¤ÎÌÀ¤ë¤¤¤ªÉô²°¤Ç¡¢¥«¥¦¥ó¥¿¡¼¥¥Ã¥Á¥ó»ÅÍͤο͵¤¤Î´Ö¼è¤ê¡ª¡ª¡¡Âå´±»³ÅÌÊâ5ʬ¡¢¹âÂæ¤ËΩÃϤ¹¤ë¿Íµ¤¥Ú¥Ã¥È²ÄÄÂÂߥ쥸¥Ç¥ó¥¹¤Ç¤¹¡ª
¢¨¼Ì¿¿¤ÏÊ̼¼¤Ç¤¹
| ¹æ¼¼ | ´Ö¼è ÌÌÀÑ |
Éß¶â Îé¶â |
ÄÂÎÁ ´ÉÍýÈñ |
¾ÜºÙ |
|---|
¥Ñ¡¼¥¯¥¢¥¯¥·¥¹Âå´±»³¥Þ¥ó¥·¥ç¥ó½êͤΥª¡¼¥Ê¡¼ÍͤØ
¾åµÊª·ï¤ò¡ÖÂߤ·¤¿¤¤¡×¡ÖÇäµÑ¤·¤¿¤¤¡×¤È¤´¸¡Æ¤Ãæ¤Î¥ª¡¼¥Ê¡¼ÍͤϤªµ¤·Ú¤Ë¤ªÌ䤤¹ç¤ï¤»¤¯¤À¤µ¤¤¡£
̵ÎÁººÄꡦÅö¥µ¥¤¥È¤Ø¤Î·ÇºÜ¤Î¤ß¤â̵ÎÁ¤ÇÂбþ¤¤¤¿¤·¤Þ¤¹¡£
© 2019 Apollon Co Ltd.