
[·ÃÈæ¼÷¤ÎÄÂÂß¡§³ô¼°²ñ¼ÒApollon(¥¢¥Ý¥í¥ó)¤ÎÉÔÆ°»º¸¡º÷¥µ¥¤¥È] ·ÃÈæ¼÷¡¦¹Èø¡¦ÃæÌܹõ¡¦Âå´±»³¤ÇÄÂÂ߸¡º÷(ÄÂÂßõ¤·)
½Âë¶è¡¦¹Á¶è¡¦Ìܹõ¶è¡¦À¤ÅÄë¶è¡¦ÉÊÀî¶è¤Ê¤É¥¨¥ê¥¢¸¡º÷¤ÎÄÂÂß¾ðÊóËþºÜ¡ªºÇ¿·ÄÂÂßʪ·ï¾ðÊ󤬸«¤¿¤¤¡ª
ÄÂÂߤϽé¤á¤Æ¤À¤«¤éÁêÃ̤·¤¿¤¤¡ª¥¤¥ó¥¿¡¼¥Í¥Ã¥È¤Ë·ÇºÜ½ÐÍè¤Ê¤¤¤ªÆÀ¤ÊÄÂÂß¾ðÊó¤â¤´¾Ò²ð¤¤¤¿¤·¤Þ¤¹¡ª
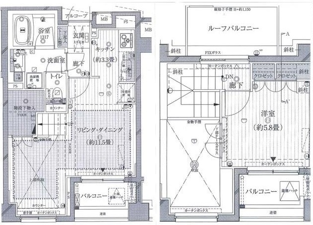
¥ë¡¼¥Õ¥Ð¥ë¥³¥Ë¡¼Éե᥾¥Í¥Ã¥È1LDK¡ª¡ª ºÇ¾å³¬¤Î¤ªÉô²°¤Ç¡¢¾²ÃÈ˼ÉÕ¤¤Î¥ê¥Ó¥ó¥°¤¬¤¢¤ë²¼³¬¤«¤é¡¢¾å³¬¤Î¥Ù¥Ã¥É¥ë¡¼¥à¤Ë¾å¤¬¤ë³¬ÃÊÉôʬ¤¬¿á¤È´¤±¤Ë¤Ê¤Ã¤Æ¤ª¤ê³«ÊüŪ¤Ç¤¹¡ª¥ë¡¼¥Õ¥Ð¥ë¥³¥Ë¡¼¤«¤é¤ÏÅìµþ¥¿¥ï¡¼¤â˾¤á¤ë³«¤±¤¿¥Ó¥å¡¼¤âÌ¥ÎϤΰì¤Ä¡ª½¼¼Â¤·¤¿¿å²ó¤êÀßÈ÷¤Ç²÷ŬÀ¸³è¤ò¥µ¥Ý¡¼¥È¤·¤Æ¤¯¤ì¤Þ¤¹¡ª
TV¥â¥Ë¥¿ÉÕ¥ª¡¼¥È¥í¥Ã¥¯¡¢¥¨¥¢¥³¥ó¡¢¾²ÃÈ˼¡¢¥¬¥¹3¸ý¥·¥¹¥Æ¥à¥¥Ã¥Á¥ó¡¢ÆÈΩÀöÌÌÂæ¡¢Íá¼¼´¥Á絡¡¢¥ª¡¼¥È¥Ð¥¹¡¢²¹¿åÀö¾ôÊØºÂ¡¢¥á¥¾¥Í¥Ã¥È¡¢¥ë¡¼¥Õ¥Ð¥ë¥³¥Ë¡¼¡¢¥Ú¥Ã¥È²Ä¡Äetc
| ¹æ¼¼ | ´Ö¼è ÌÌÀÑ |
Éß¶â Îé¶â |
ÄÂÎÁ ´ÉÍýÈñ |
¾ÜºÙ |
|---|
¥¤¥Ë¥·¥¢¥¤¥ªÌܹõ³Ø·ÝÂç³Ø¥Þ¥ó¥·¥ç¥ó½êͤΥª¡¼¥Ê¡¼ÍͤØ
¾åµÊª·ï¤ò¡ÖÂߤ·¤¿¤¤¡×¡ÖÇäµÑ¤·¤¿¤¤¡×¤È¤´¸¡Æ¤Ãæ¤Î¥ª¡¼¥Ê¡¼ÍͤϤªµ¤·Ú¤Ë¤ªÌ䤤¹ç¤ï¤»¤¯¤À¤µ¤¤¡£
̵ÎÁººÄꡦÅö¥µ¥¤¥È¤Ø¤Î·ÇºÜ¤Î¤ß¤â̵ÎÁ¤ÇÂбþ¤¤¤¿¤·¤Þ¤¹¡£
© 2019 Apollon Co Ltd.