
[·ÃÈæ¼÷¤ÎÄÂÂß¡§³ô¼°²ñ¼ÒApollon(¥¢¥Ý¥í¥ó)¤ÎÉÔÆ°»º¸¡º÷¥µ¥¤¥È] ·ÃÈæ¼÷¡¦¹Èø¡¦ÃæÌܹõ¡¦Âå´±»³¤ÇÄÂÂ߸¡º÷(ÄÂÂßõ¤·)
½Âë¶è¡¦¹Á¶è¡¦Ìܹõ¶è¡¦À¤ÅÄë¶è¡¦ÉÊÀî¶è¤Ê¤É¥¨¥ê¥¢¸¡º÷¤ÎÄÂÂß¾ðÊóËþºÜ¡ªºÇ¿·ÄÂÂßʪ·ï¾ðÊ󤬸«¤¿¤¤¡ª
ÄÂÂߤϽé¤á¤Æ¤À¤«¤éÁêÃ̤·¤¿¤¤¡ª¥¤¥ó¥¿¡¼¥Í¥Ã¥È¤Ë·ÇºÜ½ÐÍè¤Ê¤¤¤ªÆÀ¤ÊÄÂÂß¾ðÊó¤â¤´¾Ò²ð¤¤¤¿¤·¤Þ¤¹¡ª
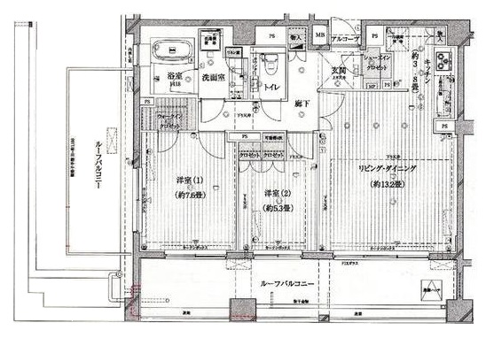
į˾Îɹ¥ ¡Ú ¥¤¥Ë¥·¥¢¥¤¥ªÌܹõ³Ø·ÝÂç³Ø ¡Û¡¡¥ë¡¼¥Õ¥Ð¥ë¥³¥Ë¡¼ÉÕ¤³ÑÉô²°2LDK¡ª
ÆîÀ¾¤Î³ÑÉô²°¤Ç¡¢³Æµï¼¼Æî¦¤Î¥ë¡¼¥Õ¥Ð¥ë¥³¥Ë¡¼¤ËÌ̤·ÆüÅö¤êÎɹ¥¤Ç¤¹¡ª¥Þ¥¹¥¿¡¼¥Ù¥Ã¥É¥ë¡¼¥à¤Ë¤Ï¥¦¥©¡¼¥¯¥¤¥ó¥¯¥í¡¼¥¼¥Ã¥È¤ò´°È÷¡ª5.3Ä¡¤Îµï¼¼¤Ë¤â¥¯¥í¡¼¥¼¥Ã¥È¤ò2¤Ä´°È÷¤·¡¢¸¼´Ø¤Ë¤Ï¥·¥å¡¼¥º¥¤¥ó¥¯¥í¡¼¥¼¥Ã¥È¡¢Ï²¼¤ËʪÆþ¤ì¤Î¤¢¤ëËÉ٤ʼýǼÎϤÏÌ¥ÎϤǤ¹¡ª
Áë¤ÎÉÕ¤¤¤¿¥Ð¥¹¥ë¡¼¥à¤ÏÍá¼¼´¥Á絡¡¢¥ª¡¼¥È¥Ð¥¹¤ò´°È÷¤·¤¿1418·¿¤ÎÂç·¿¥Ð¥¹¡ª³Ø·ÝÂç³Ø¥¨¥ê¥¢¤Î¤ª´«¤áʬ¾ùÄÂÂߤǤ¹¡ª¡ª
¢¨¼Ì¿¿¤ÏÊ̤Υ¿¥¤¥×¤Î¤ªÉô²°¤Ç¤¹
| ¹æ¼¼ | ´Ö¼è ÌÌÀÑ |
Éß¶â Îé¶â |
ÄÂÎÁ ´ÉÍýÈñ |
¾ÜºÙ |
|---|
¥¤¥Ë¥·¥¢¥¤¥ªÌܹõ³Ø·ÝÂç³Ø¥Þ¥ó¥·¥ç¥ó½êͤΥª¡¼¥Ê¡¼ÍͤØ
¾åµÊª·ï¤ò¡ÖÂߤ·¤¿¤¤¡×¡ÖÇäµÑ¤·¤¿¤¤¡×¤È¤´¸¡Æ¤Ãæ¤Î¥ª¡¼¥Ê¡¼ÍͤϤªµ¤·Ú¤Ë¤ªÌ䤤¹ç¤ï¤»¤¯¤À¤µ¤¤¡£
̵ÎÁººÄꡦÅö¥µ¥¤¥È¤Ø¤Î·ÇºÜ¤Î¤ß¤â̵ÎÁ¤ÇÂбþ¤¤¤¿¤·¤Þ¤¹¡£
© 2019 Apollon Co Ltd.