
[·ÃÈæ¼÷¤ÎÄÂÂß¡§³ô¼°²ñ¼ÒApollon(¥¢¥Ý¥í¥ó)¤ÎÉÔÆ°»º¸¡º÷¥µ¥¤¥È] ·ÃÈæ¼÷¡¦¹Èø¡¦ÃæÌܹõ¡¦Âå´±»³¤ÇÄÂÂ߸¡º÷(ÄÂÂßõ¤·)
½Âë¶è¡¦¹Á¶è¡¦Ìܹõ¶è¡¦À¤ÅÄë¶è¡¦ÉÊÀî¶è¤Ê¤É¥¨¥ê¥¢¸¡º÷¤ÎÄÂÂß¾ðÊóËþºÜ¡ªºÇ¿·ÄÂÂßʪ·ï¾ðÊ󤬸«¤¿¤¤¡ª
ÄÂÂߤϽé¤á¤Æ¤À¤«¤éÁêÃ̤·¤¿¤¤¡ª¥¤¥ó¥¿¡¼¥Í¥Ã¥È¤Ë·ÇºÜ½ÐÍè¤Ê¤¤¤ªÆÀ¤ÊÄÂÂß¾ðÊó¤â¤´¾Ò²ð¤¤¤¿¤·¤Þ¤¹¡ª

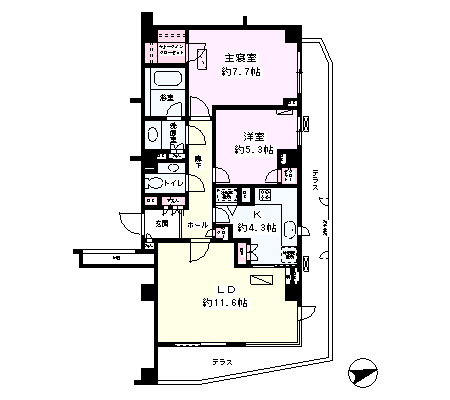
ÎФ¬Â¿¤¯»Ä¤ëÅù¡¹ÎϤδ×ÀŤʽ»Â𳹤˷ú¤ÄÁ´13¸Í¤Îʬ¾ù¥Þ¥ó¥·¥ç¥ó¡ª¡Ú¥Ñ¡¼¥¯¥³¡¼¥ÈÅù¡¹ÎÏ¡Û¤ÏÆîÅì³Ñ¤ÎÉßÃϤò»ý¤Ä¥Õ¥¡¥ß¥ê¡¼¸þ¤±¤Î¥Þ¥ó¥·¥ç¥ó¤Ç¤¹¡£À¤ÅÄë¤Ë´ó¤êź¤Ã¤¿Éʰ̤¢¤ë¤¯¤é¤·¡£
| ¹æ¼¼ | ´Ö¼è ÌÌÀÑ |
Éß¶â Îé¶â |
ÄÂÎÁ ´ÉÍýÈñ |
¾ÜºÙ |
|---|
¥Ñ¡¼¥¯¡¦¥³¡¼¥ÈÅù¡¹ÎÏ¥¢¥Ñ¡¼¥È½êͤΥª¡¼¥Ê¡¼ÍͤØ
¾åµÊª·ï¤ò¡ÖÂߤ·¤¿¤¤¡×¡ÖÇäµÑ¤·¤¿¤¤¡×¤È¤´¸¡Æ¤Ãæ¤Î¥ª¡¼¥Ê¡¼ÍͤϤªµ¤·Ú¤Ë¤ªÌ䤤¹ç¤ï¤»¤¯¤À¤µ¤¤¡£
̵ÎÁººÄꡦÅö¥µ¥¤¥È¤Ø¤Î·ÇºÜ¤Î¤ß¤â̵ÎÁ¤ÇÂбþ¤¤¤¿¤·¤Þ¤¹¡£
© 2019 Apollon Co Ltd.